Ático dúplex vendido en Montecarmelo (Madrid)
Mantenemos este reportaje para que puedas conocer nuestro modo de presentar un inmueble, y el rigor con el que exponemos sus características, pese a que esta vivienda ya se ha vendido.
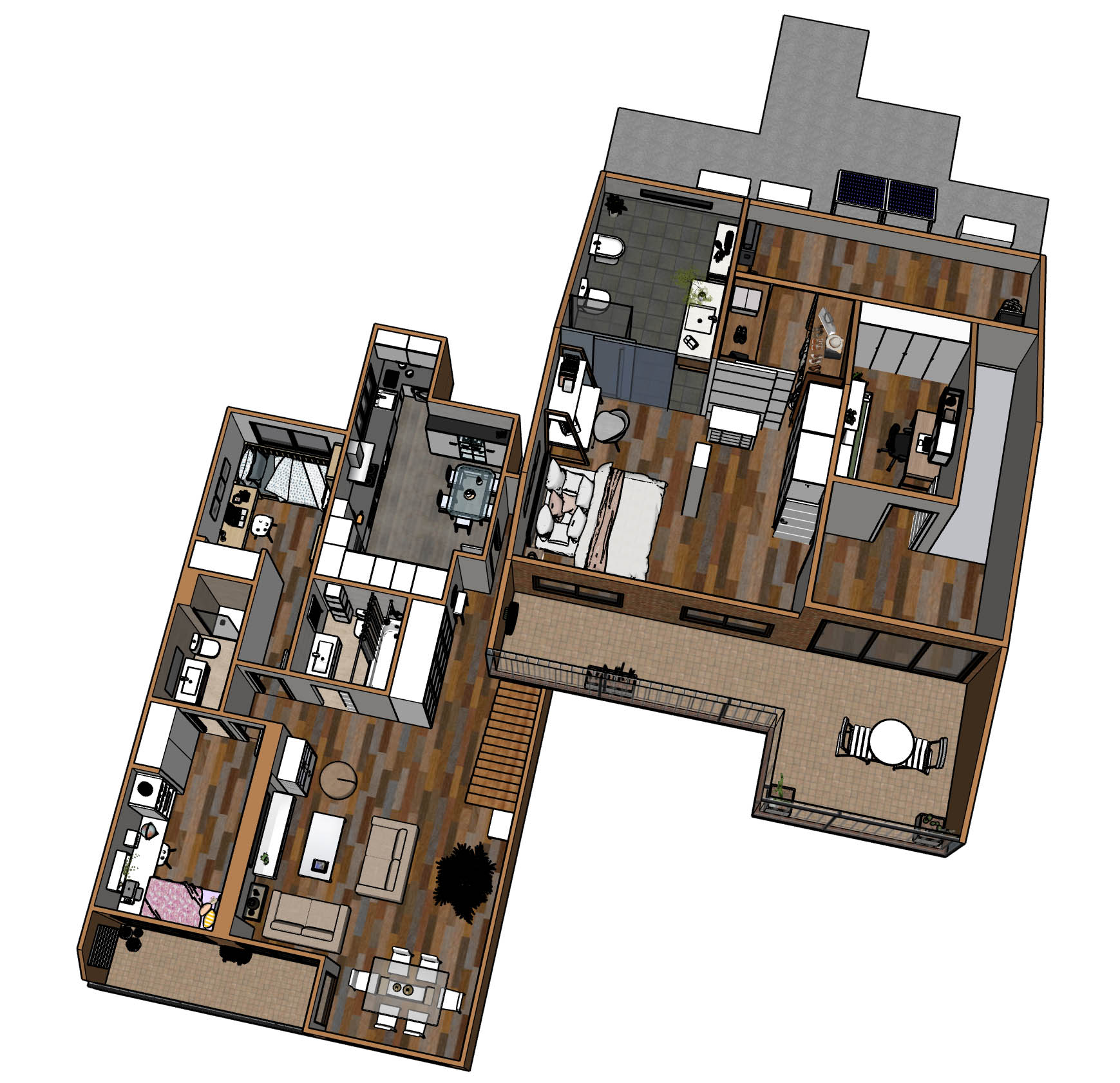
Descubre este excepcional ático dúplex en Montecarmelo, de 4 habitaciones, 3 baños y 175 metros cuadrados construidos (153 útiles) distribuido en torno a dos plantas (tercera y bajocubierta), con dos terrazas, dos plazas de garage y trastero.

La vivienda forma parte de una urbanización con una amplia piscina, pista de padel, sala de eventos, portero y zona ajardinada, situada en la sección Noroeste de Montecarmelo, próxima a comercios, colegios y restaurantes.
La ubicación del inmueble dentro del residencial tiene unas vistas despejadas a la Sierra.

Su orientación es:

- Norte en la fachada de las terrazas, pero resguardado por el bloque «gemelo» de la urbanización, con vistas a la piscina y zonas comunes, pero en el lado más tranquilo del edificio y con altura suficiente (tercero) para evitar ruidos (tanto de zonas comunes de parcela como de viales perimetrales).
- Sur en la distribución trasera de la vivienda, con salida hacia un patio de luces (dormitorio 2 y cocina de la planta principal).
El inmueble, de origen (construido en 2008), tenía 122 metros cuadrados y una terraza de uso privativo, a la que se accedía por escalera interior de la vivienda, pero a posteriori se ejecuta una ambiciosa obra que agrega al espacio de bajocubierta dos dormitorios adicionales y un baño.

Además de un vestidor y un almacén-maletero, agregando otros 53 metros cuadrados habitables a la vivienda, y convirtiéndola en una de las de mayor superficie construida de Montecarmelo.

Adicionalmente, en una segunda obra del año 2014, se renueva uno de los baños, se cambia la tarima de la bajocubierta y se construye un armario a medida en el hall de la planta principal.
Planta Tercera o Principal
El ascensor del portal habilita el acceso a la planta tercera del dúplex, que se considera la planta principal

En ella se encuentra:
- El salón comedor, al que se ha ganado espacio con la integración de una habitación para la sala de estar, y con un frontal de fachada con amplios ventanales que permite la entrada de mucha luz en la estancia, en la que se encuentra la escalera de acceso a la planta superior.
- Una amplia cocina totalmente equipada con lavadora, secadora, una nevera de gran capacidad, horno y microondas. También se dispone en este propio espacio de una zona prevista para desayunar, comer o cenar, con mesa y sillas.
- Dos dormitorios de algo más de 9 metros cuadrados cada uno.
- Dos baños, uno con plato de ducha y otro con bañera, uno de ellos en suite.
| Estancia | Superficie Útil (m²) |
|---|---|
| Cocina | 15,2 |
| Salón – Estar | 43,35 |
| Dormitorio 1 | 9,3 |
| Baño 1 | 3,8 |
| Dormitorio 2 | 9,4 |
| Baño 2 | 4 |
| Terraza | 6 |
El total de superficie de la planta tercera son 102 m² , de los cuales son útiles 90 m².

Te invitamos a recorrer…
Nuestro salón – comedor







El primer dormitorio: hoy por hoy el espacio de descanso y estudio de una de las hijas de la familia propietaria.



Con su baño en suite, muy cuidado y con excelentes acabados:


Enfrente tenemos el segundo dormitorio, que hoy es la habitación y espacio creativo de la más pequeña de la casa



También se dispone de un segundo baño para ofrecer un acceso sencillo a las estancias principales de la planta principal

Con una bañera que resultará de gran utilidad para los peques de la casa o para relajarte tras un día de intenso trabajo.

La cocina en esta vivienda destaca por su amplitud y luminosidad, fruto de la integración que se hizo en obra con el tendedero, que estaba orientado a un patio de luces y que ahora aporta mucha claridad y un espacio extra.

Dotada de nevera congelador de gran capacidad, ideal para familias numerosas o aficionados a la cocina, que agradecerán los espacios de encimera para trabajar cómodamente con los alimentos.

La cocina dispone de lavadora, secadora, lavavajillas, horno y microondas, además de una mesa con sillas y televisor para comidas o cenas en las que se quiera tener la comodidad o dinamismo de no preparar el comedor.


Los muebles de cocina tienen gran capacidad, por el diseño de grandes columnas o mobiliario auxiliar que cubre la práctica totalidad del perímetro de la estancia, por lo que no tendrás problemas de almacenaje.
Planta Bajocubierta
La escalera que encontramos en el salón nos conduce a la segunda planta de la vivienda

En ella podemos encontrar:
- Un luminoso distribuidor que conecta las estancias de la planta superior.
- Una terraza con unas preciosas vistas a la sierra.
- El tercer dormitorio de la vivienda.
- El dormitorio de matrimonio, con su vestidor y un baño completo en suite.
- Un almacén – maletero.
| Estancia | Superficie Útil (m²) |
|---|---|
| Distribuidor | 6 |
| Dormitorio 3 | 5,6 |
| Dormitorio 4 | 15,7 |
| Baño 3 | 9,3 |
| Vestidor | 1,65 |
| Almacén – maletero | 9 |
| Terraza | 15 |
El total de superficie de la planta bajocubierta son 73 m² , de los cuales son útiles 62,2 m².


¡Te lo mostramos todo!
Subiendo por la escalera encontramos un espacio distribuidor que nos da la bienvenida a la planta superior



Una de las puertas nos lleva a la habitación identificada como tercera, que actualmente dispone de una cama abatible de pared, y que puede amueblarse como despacho de trabajo o habitación de invitados.




La segunda puerta del distribuidor de la planta superior nos lleva a la habitación cuarta o dormitorio de matrimonio



El dormitorio dispone de un baño completo en suite


Con vestidor

Que se extiende hacia un almacén – maletero


La planta superior dispone de una terraza que nos ofrece unas despejadas vistas hacia la sierra




Calidades
- Cerramientos de ventanas en aluminio con puente térmico.
- Tarima de madera en las dos plantas.
- Revestimiento de paredes en baños de mármol y porcelánico de alta calidad.
- Solado de porcelánico de imitación a madera en cocina.
- Encimera de cuarzo compacto (silestone) en cocina.
- Puertas abatibles y correderas de madera con acabado en pintura blanca.
- Todos los dormitorios disponen de armario propio, además de un amplio armario-ropero en el pasillo de acceso a la vivienda.
Equipamiento e instalaciones
- La vivienda tiene aire acondicionado mediante conductos en planta baja y splits en planta superior. Las bombas de frío-calor se encuentran en la parte de cubierta no transitable del edificio.
- Calefacción mediante radiadores y caldera de gas natural.
- Radiadores – toalleros en baños
- Pre-instalación de sistema de alarma.
- Automatismo de subida / bajada de persiana de cocina.
- Videoportero.
Todo lo que necesitas para el confort de tu familia
La vivienda tiene, incluido en el precio:
Dos plazas de garaje muy amplias, que agregan 45,2 m² construidos (18,5 m² útiles) cada una al total de superficie que no habíamos considerado en los totales descritos previamente, numeradas como 14 y 15.

Un trastero de 7,26 m² construidos (5,4 m² útiles), como almacenamiento extra.

Instalaciones comunitarias

La urbanización dispone de:
Dos piscinas: una rectangular de grandes dimensiones para adultos y una piscina circular y más reducida para niños, rodeadas de zona ajardinada, palmeras y sombrillas.

Una pista de padel de césped artificial

Salones de uso comunitario para fiestas de niños, reuniones de amigos, etc.





Ubicación y Entorno
La propiedad se encuentra en el barrio de Montecarmelo de Madrid, y en concreto en su área noroeste, que es la zona más demandada y con menos oferta, caracterizada por la proximidad de comercios y restaurantes.
La vivienda se encuentra a 13 minutos caminando del metro (línea 10) y a 15 de la estación de Renfe de Paco de Lucía de Mirasierra. La localización del barrio se encuentra entre la M-40, M-607 y M-603, lo que le aporta una excelente conectividad con la ciudad y alrededores.

El activo tiene, además, un gran potencial de revalorización gracias al proyecto Madrid Nuevo Norte, que unirá Montecarmelo – Tres Olivos con la Estación de Chamartín, con 400.000 metros cuadrados de zonas verdes y un notable desarrollo del área de negocios y financiera de la ciudad.
El barrio cuenta con centros educativos como el Colegio Alemán de Madrid (a escasos metros de la urbanización), Colegio Santa María La Blanca, CEIP Infanta Leonor, CEIP Antonio Fontán, escuelas infantiles como Elena Fortún, Superkids, Nemomarlin, Sol Solito, VIB Montecarmelo, la Escuela de Educación Especial y Fundación «A la Par» o academias de idiomas como Tweens and Teens.
La oferta cultural y de ocio del barrio la compone el Auditorio Plácido Domingo, el Santuario de Valverde o el Centro Socio Cultural de Montecarmelo, y como instalaciones deportivas, destaca la Ciudad de la Raqueta, AddPaddel, Brookling Fitboxing, el gimnasio GoFit Montecarmelo, WeOn Montecarmelo, o el campo de golf Moraleja Green (Golf Park).
Opciones de bienestar y salud cercanas son el centro OxygenSpa, Elite Medical, Moments Estética, Centro Médico Montecarmelo, Conmigo (Fisioterapia), Tierra Clínica (Podología), No+bello.
Preguntas Frecuentes
¿Cuál es el precio de la propiedad?
1.130.000 €, en el que se incluye la vivienda, las dos plazas de garaje y el trastero.
¿El piso se vende con muebles?
La Propiedad está dispuesta a dejar gran parte del mobiliario si la oferta de compra se aproxima al precio solicitado.
¿Está disponible la vivienda para su entrada inmediata?
La propiedad reside actualmente en el ático duplex, y se prevé su mudanza para el mes de junio 2025. No hay problema en establecer arras de compra-venta desde ahora.
¿El inmueble se encuentra al corriente de pagos?
No se adeudan importes pendientes por Comunidad de Propietarios, ni existen cargas de origen financiero pendientes sobre el inmueble, lo cual se demostrará con nota simple y certificado del Administrador de Finca.
¿Cuánto se paga de Comunidad e IBI?
El recibo de mayo de 2025 de la comunidad de propietarios ha sido de 319 € (mensual), y el Impuesto de Bienes Inmuebles del Ejercicio 2024 fue de 807 € (anual).
¿Se tiene una idea del consumo de suministros de este inmueble?
A pesar del significativo tamaño de la vivienda, los gastos de la misma son, aproximadamente: luz, unos 50 €/mes, salvo en picos de meses de uso intensivo de aire acondicionado; agua, 30 €/mes; gas natural 150 €/mes en periodos de calefacción y 20 €/mes fuera de dicha demanda. Es obvio que esto no ofrece garantía sobre los consumos futuros, solo una referencia particular de un matrimonio con dos hijos.
Ampliar Información
Este inmueble se ha vendido, pero el hemos mantenido este reportaje descriptivo para ejemplificar nuestro modo de trabajar, y que puedas ver cómo podemos ayudarte.
¿Estudiamos tu caso?
