Chalet vendido en Montecarmelo (Madrid)
Esta vivienda se ha vendido, pero se mantiene el reportaje documental como muestra del trabajo y rigor documental de Housights.
Descubre una magnífica vivienda unifamiliar de cuatro alturas, situada en el término municipal de Montecarmelo, en la parte noroeste de Madrid, dentro de una urbanización privada y cerrada, a tan solo 10 minutos de Plaza de Castilla y la zona empresarial de referencia de la capital, las 4 Torres Business Area, integrada en el nuevo proyecto Madrid Nuevo Norte.
Este fantástico inmueble está integrado en una parcela de 425 metros cuadrados, la más grande del entorno, con piscina propia, ascensor instalado dentro de la vivienda y zonas ajardinadas particulares.
La vivienda tiene más de 300 metros cuadrados de superficie y espacios luminosos, con 3 habitaciones, 2 baños y 1 aseo y proyecto de ampliación de otras dos habitaciones (hasta 5) y dos nuevos baños (por eso la propiedad lo llama proyecto Evolutio, para adaptarse al crecimiento de la familia que tenga la suerte de instalarse en el domicilio, totalmente adaptable)
A continuación te describimos un recorrido por la vivienda, integrando la recreación 3D del inmueble y mediciones de superficies.
Planta Baja

El acceso a la vivienda, a través del porche frontal que dispone de solados de pizarra, da paso, a través de un distribuidor con aseo, a un amplio y diáfano salón con grandes puertas corredizas de cristal que integran la piscina y jardines de la vivienda en las estancias principales.

Cocina de diseño de acabados en cristal, con gran capacidad en nevera – congelador, campana de extracción industrial, horno y microondas, lavavajillas integrado y encimera de piedra.
Cuarto de estar o espacio para dormitorio en planta baja, con puerta para reservar privacidad, y puertas acristaladas a una magnífica terraza frente a piscina.








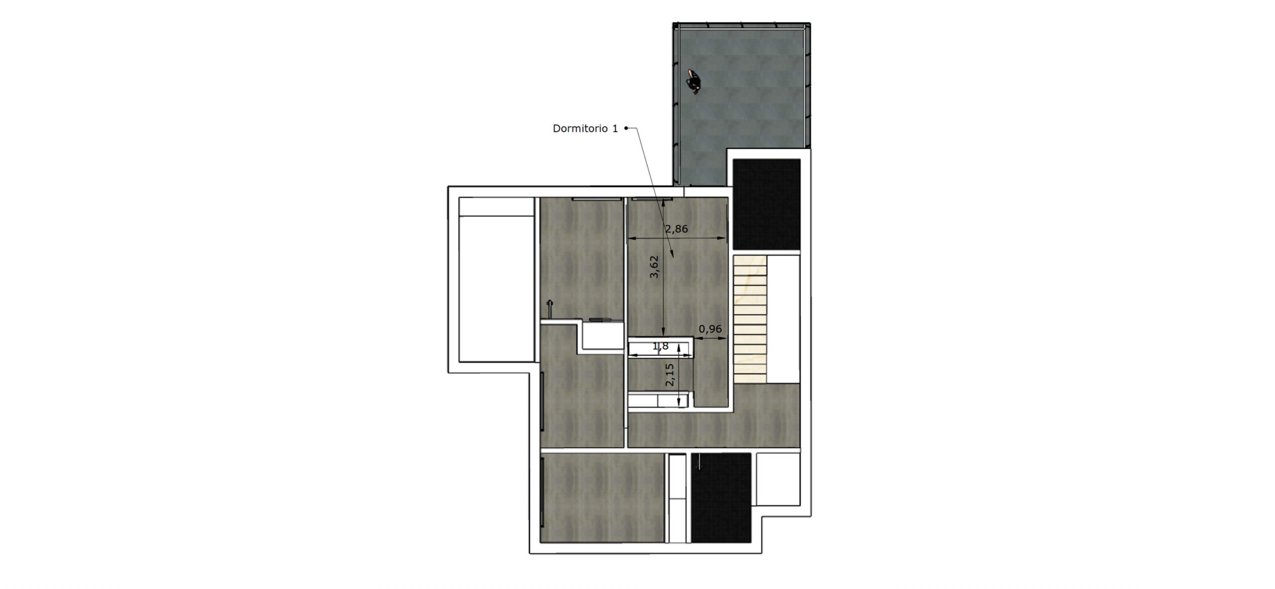
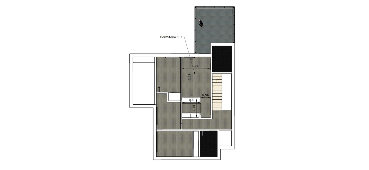
Planta Primera

Subiendo a través de unas escaleras de piedra natural, o bien mediante el ascensor OTIS Homelift integrado en el domicilio, llegamos al pasillo distribuidor de la planta primera, que nos da paso a diversas estancias:
- Un dormitorio principal de 16 metros cuadrados, con vestidor y baño, y su propia terraza privada de 14 metros cuadrados.
- Dos dormitorios adicionales, de 9,5 y 11,4 metros cuadrados.
- Una zona de estudio de 7 metros cuadrados, antesala de una de las habitaciones
- Un baño adicional, con bañera hidromasaje.

Todas las habitaciones cuentan con su propio regulador de calefacción por suelo radiante y un split de aire acondicionado.














Planta Ático
Una de los atractivos más valorados de este inmueble es una terraza-solarium de 70 metros cuadrados, con una vista fantástica de las 4 Torres y centro financiero de Madrid, desde la que podrás disfrutar de la tranquilidad de una urbanización sin igual a escasos metros de zonas verdes de la periferia de la ciudad (como el Pardo o el Monte de Valdelatas).

Esta zona de cubierta te ofrece muchas posibilidades de disfrutarla: cenas bajo un pórtico cenador con estructura metálica ya cimentada, fiestas con familiares y amigos instalando una mesa y barra, zona de relax disponiendo tumbonas, o de ocio al aire libre para invitar a tus compañeros de trabajo a un after-work, todo ello con acceso directo con ascensor.
Varios vecinos de la urbanización han realizado un cerramiento ganando más estancias a la vivienda, por si quieres instalar un dormitorio adicional con vistas al cielo de Madrid o un despacho de trabajo para concentrarte lejos de la actividad doméstica del domicilio.



Planta sótano
En la altura bajo rasante, la vivienda dispone de varias estancias:

- Un garaje diáfano con espacio para tres vehículos. Actualmente dispone de una zona orientada a taller de bricolaje, zona de deporte o gimnasio, y además del espacio para guardar tus coches o motos, encontrarás espacio de almacenamiento doméstico (una amplia despensa) y un armario en forma de L para guardar ropa o elementos del hogar.
- Sala de caldera, modelo Junkers con calderín (vaso de expansión) y depósito, que da servicio al ACS (Agua Caliente Sanitaria) y Calefacción por suelo radiante, con conexión a centralitas de electro-válvulas y 4 circuitos de ida / retorno.
- Cuarto de lavandería, con lavadora y secadora, además del cuadro de maniobras del ascensor y telecomunicaciones.
- Estudio de 25 metros cuadrados, ideal para un cuarto de juegos, un dormitorio o una estancia completa para personal de servicio o invitados, que por supuesto tiene ventanas, aire acondicionado y suelo radiante.

Idea para decoración de estudio de sótano, actualmente vacío:
La planta sótano ofrece un espacio versátil para el almacenamiento, ocio o aparcamiento, si bien el vial privado de la zona exterior de la vivienda permite un espacio seguro para dejar tus vehículos.








Calidades e Instalaciones
La vivienda, cuya finalización de construcción fue en el año 2012, se caracteriza por unas elevadas calidades de materiales y acabados:
- Fachada de piedra natural
- Solados en exteriores con acabados de pizarra
- Suelos porcelánicos en todas las estancias, de imitación a madera
- Armarios empotrados
- Puertas correderas de madera lacada blanca
- Calefacción por suelo radiante en los cuatro niveles de la vivienda
- Caldera de condensación
- Agua Caliente Sanitaria con depósito que se calienta con paneles solares
- Aire Acondicionado en todos los dormitorios
- Sistema de domótica que, mediante voz, aplicación móvil o display de pared, controla persianas, luces o sistema de calefacción.
- Alarma de seguridad.
- Antena propia
- Ascensor con 4 paradas: sótano, planta baja, planta primera e incluso ático, lo que garantiza una perfecta accesibilidad, para facilitar su uso en edad avanzada o para personas con movilidad reducida.
Potenciales proyectos de futuro
(Re)decoración del inmueble: La actual propiedad vende la vivienda con el 80% de los bienes y mobiliario que se encuentra instalado, y está encantada de conocer los planes de una futura familia propietaria para facilitar algún bien adicional, aunque inicialmente estuviese previsto recuperarlo. En algunas estancias se han retirado muebles y decoración, en favor de facilitar que el interesado en formar un nuevo hogar pueda llevar su mobiliario y enseres personales, pero se cuenta con el apoyo de un equipo de decoración que puede trasladar renders y simulaciones 3D de una nueva decoración, si fuese necesario.
En el caso del dormitorio principal, la estancia se encuentra vacía. Si el potencial comprador no desease traer su mobiliario para ese dormitorio, la propiedad actual ofrece, incluido en el precio, tres variantes de proyecto de decoración para la habitación de matrimonio, pre-acordados con empresa especializada.
Habilitación para cuarto dormitorio en planta primera, que en el proyecto de construcción no se llevó a término para mantener dos alturas en el salón. Sin sacrificar la luminosidad de la planta baja se puede integrar un dormitorio adicional en planta primera. En la situación actual se puede ver cómo ya se dispone de la ventana y medio metro de solado, para facilitar la conversión. El acceso a este dormitorio adicional tendría como paso la antesala del tercer dormitorio.


Precisamente esa antesala al tercer dormitorio ha hecho las veces de estudio compartido para los niños, pero también es el espacio ideal para disponer un cuarto de bebé, con cuna, cambiador y juguetes, por lo que en planta primera se pueden tener entre 3 y 5 dormitorios.
Cerramiento en planta ático para incorporar una nueva estancia. La situación de la vivienda es que toda la cubierta del solarium está abierta, pero tiene preinstalada una estructura metálica lista para:
Opción 1: instalar rieles y cortinas para conformar un cenador. La primera fotografía es la situación de la vivienda de un vecino de urbanización, que ha instalado una piscina.
Opción 2: el 80% de los vecinos de la urbanización han creado un cerramiento sobre el espacio conformado en la estructura metálica, respetando la apariencia de fachada, para ganar un dormitorio o estancia adicional a la vivienda. Sobre él, muchos han colocado paneles solares adicionales para convertir el inmueble en una residencia de consumo eléctrico 0.


Esta vivienda es, por tanto, tu lienzo en blanco para que la adaptes o personalices, con el paso de los años, a las necesidades de tu familia.
Urbanización y entorno
La vivienda se encuentra en el barrio de Montecarmelo de Madrid, en la parcela central y de mayor tamaño de una de las urbanizaciones más exclusivas del entorno norte de Madrid. Con unas excelentes comunicaciones, gracias a la conexión con la M-607, M-603 y accesos a M30 y M40, la vivienda se encuentra a 10 minutos del eje Paseo de la Castellana – Plaza Castilla, y de rápido acceso a la zona CTBA (Cuatro Torres Business Area).
El activo tiene, además, un gran potencial de revalorización gracias al proyecto Madrid Nuevo Norte, que unirá Montecarmelo – Tres Olivos con la Estación de Chamartín, con 400.000 metros cuadrados de zonas verdes y un notable desarrollo del área de negocios y financiera de la ciudad.


El chalet se encuentra junto al Centro Comercial de Montecarmelo, por lo que se tiene una zona comercial muy próxima con supermercado y comercios, además de los propios del barrio del barrio.
El barrio cuenta con centros educativos como el Colegio Alemán de Madrid, Colegio Santa María La Blanca, CEIP Infanta Leonor, CEIP Antonio Fontán, escuelas infantiles como Elena Fortún, Superkids, Nemomarlin, Sol Solito, VIB Montecarmelo, la Escuela de Educación Especial y Fundación «A la Par» o academias de idiomas como Tweens and Teens.
La oferta cultural y de ocio del barrio la compone el Auditorio Plácido Domingo, el Santuario de Valverde o el Centro Socio Cultural de Montecarmelo, y como instalaciones deportivas, destaca la Ciudad de la Raqueta, AddPaddel, Brookling Fitboxing, el gimnasio GoFit Montecarmelo, WeOn Montecarmelo, o el campo de golf Moraleja Green (Golf Park).
Opciones de bienestar y salud son el centro OxygenSpa, Elite Medical, Moments Estética, Centro Médico Montecarmelo, Conmigo (Fisioterapia), Tierra Clínica (Podología), No+bello.
El transporte público que ofrece el barrio son las paradas de metro Montecarmelo y cercanías Mirasierra Paco de Lucía o Fuencarral. Las opciones de autobús más próximas son, a menos de 5 minutos caminando, las líneas 134 y 178 hacia Plaza de Castilla, o el nocturno N23, conectado con la Plaza de Cibeles, en el Centro de Madrid.
Ampliar Información
Este inmueble se ha vendido, pero el hemos mantenido este reportaje descriptivo para ejemplificar nuestro modo de trabajar, y que puedas ver cómo podemos ayudarte.
¿Estudiamos tu caso?
